Woodley Park Community Issues: Woodley Wardman Residences

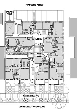
Four townhouses along Connecticut (2816-2822 Connecticut Avenue) were being gutted and redesigned into modern condominium residences. The developer also constructed a seven-story addition, with more units, in what had been the garage and parking area behind these townhouses. The website for the development is here, and there are some drawings of the project below.

On January 16, 2007, the DC Board of Zoning Adjustment granted the developer the zoning relief it needed to build the addition at the scale the developer wanted.

Work began in earnest in the Fall of 2009 and should be completed in 2111.

Want to Learn More?


history the teams your hosts the field welcome welcome